国管资〔2023〕197号
中央国家机关各部门、各单位:
为全面贯彻落实习近平总书记关于机关事务工作的重要指示精神,坚持勤俭办一切事业,按照《行政事业性国有资产管理条例》(国务院令第738号)等法规制度和相关标准,我们研究制定了《中央行政事业单位通用办公家具规格和性能指南》,现印发给你们,请参照执行。执行中的有关情况,请及时反馈我局。
国家机关事务管理局
2023年8月11日
前 言
为全面贯彻落实习近平总书记关于机关事务工作的重要指示精神,坚持勤俭办一切事业,加强中央行政事业单位通用办公家具标准化建设,推动形成庄重、简朴的办公风格,为中央行政事业单位通用办公家具的采购、配置、使用、处置等全生命周期管理提供标准依据,我们起草了《中央行政事业单位通用办公家具规格和性能指南》(以下简称《指南》)。
《指南》推荐了相对统一的通用办公家具规格、颜色、样式和材质,提升了环保标准,规范了质量要求和售后服务标准。相关指标、参数和样式是推荐性、参考性的,不作为强制性要求,也不影响各部门现有通用办公家具的使用和调剂。各部门、各单位不得借《指南》印发,大规模配置更新现正常使用的通用办公家具。
本指南起草单位:国家机关事务管理局资产管理司、中央国家机关政府采购中心。
中央行政事业单位通用办公家具
规格和性能指南
JGSW 05—2023
1 范 围
本文件规定了通用办公家具的术语与定义、基本要求、外观、材料、环保、质量、规格和售后服务要求。
本文件适用于中央行政事业单位司局级及以下干部的通用办公家具管理工作,是中央行政事业单位编制和执行通用办公家具配置计划,实施政府采购,开展资产日常使用、调剂、处置等工作的指导依据。中央行政事业单位可依据本文件,结合实际制定本部门、本单位通用办公家具规格和性能管理具体方案。
对未列入本文件资产品目内的其他通用办公家具,应当按照与单位履行职能需要相适应的原则执行掌握。
2 规范性引用文件
下列文件中的内容通过文中的规范性引用而构成本文件必不可少的条款。其中,注日期的引用文件,仅该日期对应的版本适用于本文件;不注日期的引用文件,其最新版本(包括所有的修改单)适用于本文件。
- 行政事业性国有资产管理条例(国务院令第738号)
- 中央行政事业单位国有资产管理暂行办法(国管资〔2009〕167号)
- 中央行政单位通用办公设备家具配置标准(财资〔2016〕27号)
- 木家具通用技术条件(GB/T 3324—2017)
- 木家具质量检验及质量评定(QB/T 1951.1—2010)
- 金属家具通用技术条件(GB/T 3325—2017)
- 金属家具质量检验及质量评定(QB/T 1951.2—2013)
3 术语与定义
- 中央行政事业单位
国务院各部门、各直属事业单位,最高人民法院,最高人民检察院,有关人民团体等的机关本级及其所属垂直管理机构、派出机构等各级行政单位和各类事业单位。
- 通用办公家具
普遍适用于中央行政事业单位,配置在包括办公室、会议室等场所,满足办公基本需要的家具,不含专业类家具。
4 基本要求
4.1 通用办公家具选材、制作、运输、使用及报废等应当符合国家有关资源节约、绿色健康环保等标准和要求,逐步形成相对统一的风格,促进标准化生产和规模化采购。
4.2 通用办公家具应当符合勤俭节约、庄重严肃、简约实用的要求,不得配置豪华家具。各单位在用的办公家具,应当继续使用,加强维护保养,不得借机进行非必要配置和更新。
4.3 中央行政事业单位应当综合考虑通用办公家具存量、增减变动和机构人员情况等因素,科学编制配置计划,严格按计划配置通用办公家具。
4.4 通用办公家具应当根据办公实际需要和办公用房面积、布局合理配置。新组建部门办公区、集中办公区或开展综合性维修的办公区等,具备条件的,可结合实际配置统一风格的通用办公家具。
4.5 配置通用办公家具首先应当通过单位内部调剂存量资产予以保障;内部无法调剂的,可通过中央行政事业单位公物仓进行跨部门、跨地区、跨层级的调剂予以保障。确有必要购置的,应当严格按照资产管理有关规定执行。
4.6 中央行政事业单位应当建立通用办公家具使用责任清单制度,明确使用人和管理人的岗位责任,将管理责任落实到具体人员。使用人、管理人应当履行岗位责任,按照规程合理使用、管理通用办公家具,及时提出维修、保养、调剂、更新、报废需求,保证资产安全完整,充分发挥资产效能。
4.7 严格执行中央行政事业单位通用办公家具处置管理有关规定,规范处置程序,经维修后仍具有使用价值的通用办公家具,应当及时修旧利旧,已达报废期限但尚能使用的要继续使用,切实做到物尽其用,避免浪费。除国家另有规定外,经批准的处置事项要面向社会进行公开,增加处置事项透明度。
5 外观和材料要求
5.1 样式要求
通用办公家具样式宜与建筑装修风格协调一致,不做多余装饰,体现务实节俭的办公文化。零部件构成合理,拆装方便,结构功能尺寸设计符合人体工效学原理。
5.2 颜色要求
通用办公家具颜色宜与建筑内装饰风格相适应,以单色为主,不宜过分鲜艳,内外部涂饰应当协调一致。木制家具表面颜色推荐选用胡桃木色、樱桃木色、原木色;钢制家具表面颜色推荐选用灰白色或者镀铬金属色;覆面材料推荐选用黑色、棕色、米色。
5.3 材料要求
制作通用办公家具宜选用可回收、可循环利用材料,材料性能符合国家及行业标准,不得选用名贵木材。
6 环保要求
6.1 板材有害物质限量要求:甲醛释放量≤0.05mg/m3,总挥发性有机化合物(TVOC)释放量≤0.1mg/m3。
6.2 座椅软包、织物中有害物质限量要求:皮革、纺织品面料禁用可分解芳香胺染料。
6.3 涂饰材料中重金属限量要求:可溶性铅≤90mg/kg,可溶性镉≤75mg/kg,可溶性铬≤60mg/kg,可溶性汞≤60mg/kg。
7 质量要求
7.1 外观质量
家具表面平整光滑,无明显划伤、凹坑、鼓泡、黑色斑点、污渍等缺陷;木制家具表面木纹纹路一致,凹凸部分匀称,纹理清晰,色泽一致;无褪色、掉色现象,贴面严密平整,封边、包边无脱胶、鼓泡或开裂现象。
家具长、宽、高等核心尺寸长度、宽度误差≤3mm;桌平面、立面板材翘曲度值≤1mm。
7.2 力学耐用性
零部件应无断裂或豁裂;无严重影响使用功能的磨损或变形;用手揿压某些应为牢固的部件,应无永久性松动;连接部位应无松动;活动部件(门、抽屉等)开关应灵活;家具五金件应无明显变形、损坏;推柜稳定性牢固,柜门、抽屉用力开合不变形。办公桌、办公椅、会议桌、会议椅最大承重不低于100kg;书柜、文件柜内隔板最大承重不低于35kg;衣柜内隔板最大承重不低于30kg,挂衣杆最大承重不低于15kg;抽屉最大承重不低于6kg。
7.3 表面耐用性
表面漆膜遇生活中常见酸性或碱性液体不会出现褪色、变形、膨胀、纤维突起、开裂、鼓泡等现象,日常使用不会产生明显划痕和漆膜剥落现象;遇光照、冷、热、温差不易鼓泡、裂缝和明显失光。
8 材质和规格要求
材质和规格要求
家具
|
材质 |
规格(单位:毫米) |
|
| 办公桌 | 钢木结合/木制 | 司局级 | 由主台、副台、三屉活动推柜构成。
主台:2200×1100×760或2000×1000×760,中间净空高≥580; 副台:1400×550×660或1200×550×660,抽屉内宽≥230,可选配键盘架、电脑主机箱空格、单开门柜; 推柜:420×490×660,配置三连锁。 |
| 处级及处级以下 | 由主台、副台、三屉活动推柜构成。
主台:1800×900×760或1600×800×760,中间净空高≥580; 副台:1200×440×660或1000×440×660,抽屉内宽≥230,可选配键盘架、电脑主机箱空格、单开门柜; 推柜:420×490×660,配置三连锁。 |
||
| 办公椅 | 椅架:钢制/木制/塑胶;
覆面:皮制/网布/防静电麻绒面料/科技布; 填充物:泡棉/海绵/蓬松棉。 |
座高420,扶手高220,背倾角95°~105°。 | |
| 书 柜 | 木制 | 司局级 | 900×420×2000。上部为玻璃对开门,下部为木制对开门,内部涂饰处理,隐蔽部位封闭处理。层间净高≥250。 |
| 钢制 | 处级及处级以下 | 900×400×2000。上部为钢框玻璃对开门,下部为钢板对开门,内置不少于4块钢制可调节隔板。可配钢制对开门顶柜。层间净高≥250。 | |
| 文件柜 | 木制 | 司局级 | 900×420×2000。内置不少于4块可调节隔板。层间净高≥330。 |
| 钢制 | 处级及处级以下 | 900×400×2000。内置不少于4块钢制可调节隔板,可配钢制对开门顶柜。层间净高≥330。 | |
| 更衣柜 | 木制 | 司局级 | 900×420×2000(须内设纵向挂衣杆)或
900×550×2000(须内设横向挂衣杆),配带镜框穿衣镜,2块固定隔板。 |
| 钢制 | 处级及处级以下 | 900×400×2000或600×400×1850,内设纵向金属挂衣杆,穿衣镜,2块固定隔板。 | |
| 沙发 | 框架:木制;
覆面:皮制/防静电麻绒面料。 |
三人 | 2150×1000×930,座前宽≥1440,座高400~460(包括下沉量),靠背倾角100°~120°,座面倾角2°~15°。 |
| 单人 | 1080×1000×930,座前宽≥480,座高400~460(包括下沉量),靠背倾角100°~120°,座面倾角2°~15°。 | ||
| 会议桌 | 钢木结合/木制 | 1200×550×750,中间净空高≥580。可拼装单元,
根据会议室面积确定单元数量。会议桌边缘拱形部分可根据会议桌规格自行定制。 |
|
| 会议椅 | 椅架:钢制/木制;
覆面:皮制/网布面料/防静电麻绒面料; 填充物:泡棉/海绵与蓬松棉。 |
480×500×900,座高420,背倾角95°~105°。 | |
9 售后服务要求
9.1 中央行政事业单位以购置方式配置通用办公家具时,宜选择能够提供不低于3年免费保修期的家具供应商。免费保修期内,享受免费家具维修及零部件更换等售后服务;超出免费保修期限的办公家具,可采用有偿方式方进行家具维修更换等。
9.2 中央行政事业单位以购置方式配置通用办公家具时,宜选择配备专业售后服务人员、在本单位所在区域设置常驻维修服务机构的家具供应商,及时提供售后服务。
附 录:
- 通用办公家具参考样式
- 办公室通用办公家具摆放参考样式
附 录 1
通用办公家具参考样式

通用办公家具参考样式
附 录 2
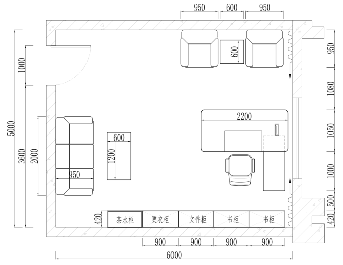
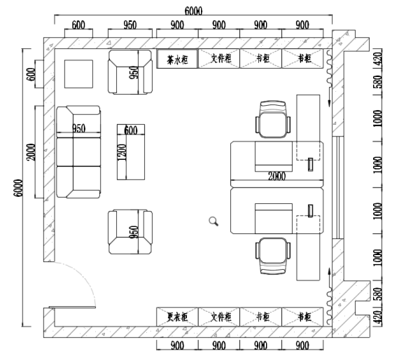
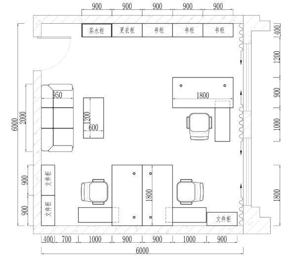
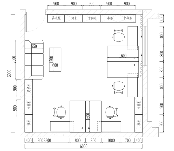
办公室通用办公家具摆放参考样式
一、面积18㎡办公室
1 名副司级干部办公

2 名科级干部办公

二、面积24㎡办公室
1 名正司级干部办公

2 名处级干部办公

三、面积30㎡办公室
1 名垂管派出机构正司级干部办公

1 名处级和2名科级干部办公

四、面积36㎡办公室
2 名副司级干部办公

3 名处级干部办公

4 名科级干部办公

五、面积48㎡办公室
4 名处级干部办公

1 名处级4名科级干部办公



